EN CHANTIER


EN CHANTIER


APPARTEMENT PIGALLE.
YANNA WILLIAMS
Architecte d'intérieur
Conception & réalisation d'espaces d'exception
APPARTEMENT MARX DORMOY.
Etude de l’agencement d'un appartement de 55m2 à Montrouge.
Espace à traité
PHASE 1: ÉTUDE DE L’ESPACE
État des lieux
> Rendez-vous sur place pour état des lieux (photos, relevé des cotations, bien
cibler la demande du client avec établissement du cahier des charges)
Plans
> Réalisation du plan 2D de l’existant de l’appartement
> Réalisation du plan 2D du plan projeté en prenant en compte le cahier des
charges donné par le client (2/3 à voir)
> Réalisation des plans d’aménagement de l’espace salon/cuisine, sas et wc.
(dessins menuiseries sur-mesure: dressing, placards, étagères et solutions
astucieuses de rangement et décoratives)
> Réalisation des plans techniques de l’espace salon/cuisine, sas et wc. (plan
cloison, plan électrique)
> Étude et dessin d’une nouvelle cuisine (caissons, plan de travail, façades,
robinetterie, électroménager via le logiciel de conception en ligne du vendeur )
PHASE 2: ÉTUDE DES MATÉRIAUX, AMBIANCE ET DÉCORATION
Modélisations et rendus photoréalistes
> Réalisation de la 3D de l’espace salon/cuisine, sas et wc.
> Réalisation des visuels photoréalistes (6).
Recherche aménagement, matériaux, fournitures et mobilier.
> Recherche aménagement : menuiserie cuisine, et dressing dans le sas.
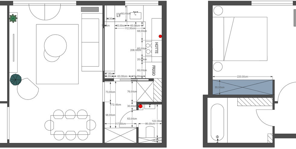
PLAN DU PROJET

PHOTOS & VIDEOS PHASE DEMOLITION
VISUELS DU PROJET

PLANS ANNEXES
> Plan existant de l'ensemble de l'appartement
> Plan électrique de l'ensemble de l'appartement
> Plan 2D du plan projeté
> Plans d’aménagement de l’espace salon/cuisine, sas et wc
(dessins menuiseries sur-mesure: dressing, placards, et étagères)
































